联系
我们
138-1369-3589
280334653@qq.com
当前位置:首页 > 产品中心 > 制粒设备
  • 喷雾干燥制粒机
  • 喷雾干燥制粒机
  • 喷雾干燥制粒机

PGL系列喷雾干燥制粒机

所属分类:制粒设备

产品简介:本机组工作过程为料液通过隔膜泵高压输入,喷出雾状液滴,然后同热空气并流下降,大部分粉粒由塔底排料口收集,废气及其微小粉末经旋风分离器分离,废气由抽风机排出,粉末由设在旋风分离器下端的授粉筒收集,风机出口还可装备二级除尘装置,回收率在96-98%以上。

联系我们

产品概述

  本机组是一种可以同时完成干燥和造粒的装置。按工艺要求可以调节料液泵的压力、流量、喷孔的大小,得到所需的按一定大小比例的球形颗粒。

  本机组工作过程为料液通过隔膜泵高压输入,喷出雾状液滴,然后同热空气并流下降,大部分粉粒由塔底排料口收集,废气及其微小粉末经旋风分离器分离,废气由抽风机排出,粉末由设在旋风分离器下端的授粉筒收集,风机出口还可装备二级除尘装置,回收率在96-98%以上。

  本机组与物料接触部分的塔体、管道、分离器的材料,均采用SUS304制作。在塔体内部与外壳之间有足够的保湿层,填充材料为超细玻璃棉,塔体设有观察门、视镜、光源及控制仪表,由电器控制操作台控制和显示。

产品应用

制药工业:片剂、冲剂、胶囊剂颗粒;低糖、无糖的中成药颗粒; 食品:可可、咖啡、奶粉、颗粒果汁、调味品等; 其它行业:农药、饲料、化肥、颜料、染料等。

产品特点

1、干燥速度快,料液经雾化后表面积大大增加,在热风气流中,瞬间就可蒸发95%-98%的水份,完成干燥的时间仅需要十几秒到数十秒种,特别适用于热敏性物料的干燥。

2、所有产品为球状颗粒,粒度均匀,流动性好,溶解性好,产品纯度高,质量好。

3、使用范围广,根据物料的特性,可以用热风干燥, 也可以用冷风造粒,对物料的适应性强。

4、操作简单稳定,控制方便,容易实现自动化作业。

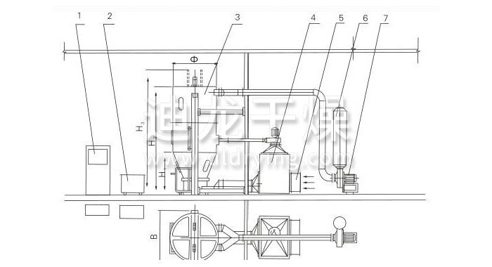
结构示意图

喷雾干燥制粒机结构示意图

1、控制柜 2、输液小车 3、主机 4、换热柜 5、亚高效过滤器 6、消声器 7、引风机

技术参数

项目 单位/机型 PGL-3B PGL-5B PGL-10B PGL-20B PGL-30B PGL-80B PGL-120B
流浸膏 min kg/h 2 4 5 10 20 60 100
max kg/h 4 6 15 30 40 100 140
沸腾能力 min kg/批 2 6 10 30 60 100 150
max kg/批 6 15 30 80 160 250 450
液体比重 kg/L ≤1.30
原料容器量 L 26 50 220 420 620 980 1600
容器直径 mm 400 550 770 1000 1200 1400 1600
引风机功率 kw 3.0 5.5 7.5 11 15 18.5 30
辅风机功率 kw 0.35 0.75 0.75 1.20 2.20 2.20 4
蒸汽 耗量 kg/h 40 70 99 210 300 366 465
压力 Mpa 0.40-0.60
电热型功率 kw 9 15 21 25.5 51.5 60 75
压缩空气 耗量 m³/min 0.5 0.8 0.8 0.9 1.1 1.3 1.8
压力 Mpa 0.40-0.60
作业温度 室温-160℃自动调节
产品水份 % ≥0.2
物料收得率 % ≥99
设备噪音 dB <77
主机尺寸 Φ mm 400 550 770 1000 1200 1400 1600
H1 mm 940 1050 1070 1220 1570 1590 1690
H2 mm 1900 2360 2680 3150 3630 4120 5050
H3 mm 2050 2590 3020 3600 4180 4770 5800
B mm 740 890 1110 1420 1620 1820 2100

选型:要求每批次处理流浸膏量 I=120kg(含固量为30%)、种子量II=60kg,可由I、II得出理论成品量 M=mI+mII=120kgx30%+60kg=96kg,工作时间T=120kg/30kg/h=4h,技术参数栏中可查出沸腾量为标准载荷范围,故以每班完成两个批次,选用PGL-30型较为适宜。

应用客户
视频集锦
    暂无记录...
动画演示
相关工程
暂无记录...

在线反馈

相关文章
  • 2024-05-28 10:35:36

    干燥设备的维护是确保其正常运行、延长使用寿命以及保持高效能的关键环节。以下是干燥设备维护的详细步骤和要点:一、日常清洁与除尘* 定期对干燥设备进行外观清洁和内部清理,防止灰尘和污垢的积累影响设备的干燥效果。* 使用软毛刷或吹风机清除设备表面的灰尘,注意不要…

  • 2024-05-06 14:32:36

    干燥设备在使用过程中可能会遇到一些常见故障,以下是这些故障及其相应的解决方法,以清晰、分点的形式呈现:常见故障一:干燥效果不佳原因:物料干燥时间过长或干燥温度过高。设备容量过小,无法应对大量的原材料。风压和风网流量的计算不准确。解决方法:尝试减少干燥时…

  • 2024-04-17 14:26:42

    带式干燥机履带翘起的原因可能包括以下几点:履带松动:当履带松动时,履带与履带轮或齿轮之间的摩擦力会增加,这种增加的摩擦力可能导致履带翘起。履带松动通常会伴随着履带跑偏、磨损等问题,这些问题会进一步加剧履带的翘起现象。履带过紧:如果履带过紧,同样会导致履…

  • 2024-03-21 14:03:36

    喷雾干燥机进风温度升不上去可能是由多种原因导致的。以下是一些可能的原因及解决方法:软管堵塞或弯曲:软管堵塞或弯曲会影响气流流出喷雾干燥机设备,导致空气循环不好,进而影响到干燥效果。需要检查并清洁或调整软管,保证其通畅。物料超载:物料超载会导致机器堵塞,…

  • 2024-02-12 14:08:46

    带式干燥机的维护保养是确保其长期稳定运行和延长使用寿命的关键。以下是详细的维护保养步骤和要点:一、日常保养清洁工作:定期清理设备内外的灰尘和杂物,特别是进出料口、料仓内部以及皮带、输送机、机架工作面等位置,确保设备清洁。使用稀释过的碱性清洗剂进行擦拭,…

  • 2024-01-09 13:48:59

    盘式干燥机在处理能力方面表现良好,具有以下几个特点:高效节能:盘式干燥机以采用热传导方式进行干燥,干燥盘的中间部分有轴流式风机进行热交换,以实现湿物料的干燥。这种干燥方式使得盘式干燥机具有较高的热效率,能够有效地节约能源。处理能力出众:盘式干燥机结构紧…

关于我们
公司简介
产品中心
干燥设备 煅烧设备 制粒设备 混合设备 粉碎设备 筛分设备 热源设备 除尘设备 其他设备
新闻资讯
公司新闻 行业新闻
联系我们
13813693589姚经理
邮箱:280334653@qq.com
地址:天宁区郑陆镇三河口工业区
Copyright 2023 天宁区郑陆迪龙干燥设备厂 苏ICP备2024104701号 版权声明 技术支持:江苏东网科技
Top